Mẫu thiết kế nhà vườn mini 90m2/sàn được thiết kế kiểu dáng tân cổ Châu Âu và được phân bổ quy hoạch không gian sân đón gió, vườn cây xanh quanh nhà...đảm bảo chuẩn theo yêu cầu xây dựng nhà ở nông thôn Việt Nam.
Nhà được xây dựng trên đất 20mx17.5m và được cắt vát phân bổ diện tích xây dựng 90m2 mặt tiền chính 8.8mx10.2m mặt tiền phụ gồm 3 phòng ngủ đủ theo nhu cầu sử dụng gia đình 2 thế hệ.

Phối cảnh 3D các góc công trình nhà vườn nông thôn đẹp:

Hơi hướng tân cổ nhẹ nhàng kiểu dáng Châu Âu với những chi tiết uốn vòm hoài cổ, trụ cột khỏe khoắn, phào chỉ nhẹ nhàng được thiết kế chuẩn tỉ lệ xây dựng tạo nên dáng công trình ấn tượng hút mắt ngắm. Chi tiết mái chéo chữ A thoáng khí được tạo cột kèo cẩn thận, đổ bê tông chắc chắn và dán ngói thái đen thoát nước nhanh kết hơp với hệ cổng kiểu dáng tân cổ sử dụng hoa sắt ở những ô thoáng và gạch block đen giúp nâng tầm công trình lên hệ nhà cao cấp, sang trọng.

Những ô cửa thoáng được tính toán vừa đủ làm sáng không gian nội thất bên trong, đón nắng, đón gió ở những hướng phong thủy đem may mắn, hạnh phúc vào trong cuộc sống gia đình. Hệ tường rào được thiết kế đồng kiểu dáng ở mọi hướng đặt mắt kết hợp với kiến trúc, tỉ lệ nhà tạo cảm nhận mẫu thiết kế biệt thự vườn mini đẳng cấp, ấn tượng.

Các góc đón gió Nam, nắng sớm Đông đều được tận dụng thiết kế ban công tốt cho sức khỏe các thành viên sống trong ngôi nhà. Bậc thang tam cấp giúp không gian đón khách thêm sang trọng kết hợp đồng gam đen cùng mái thái tạo những nhịp màu phối đẹp mắt, sắc sảo.

Tầng 1 ngôi nhà được bố trí vừa vặn không gian sinh hoạt cho gia chủ. Phòng khách kết hợp không gian thờ tự linh thiêng ngay sảnh chính vào hướng con cháu nhớ về cội nguồn tổ tiên, tiện cho việc thắp nhan cho người đã khuất mỗi khi con cháu ghé qua nhà. Phòng ngủ gia chủ ngay áp bên thuận tiện đón tiếp khách. Phòng bếp ăn được đặt cuối nhà theo hướng gió đẩy tránh mùi thức ăn ra không gian đón khách trang trọng của ngôi nhà.

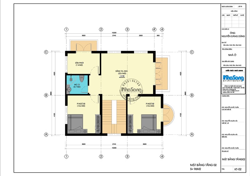
Tầng 2 được bố trí phòng ngủ hai con trai, con gái trong gia đình với phòng sinh hoạt chung để tiếp khách riêng tư của các con tiện dụng. Sân chơi được bố trí hướng đón gió Nam mát cho ngôi nhà; 1 WC chung đủ dùng cho tầng 2 ngôi nhà đẹp.
Nhà Sang với đội ngũ kiến trúc sư dày dặn kinh nghiệm trong thiết kế và thi công công trình dân dụng đảm bảo mang đến cho bạn và gia đình những góc sống lý tưởng nhất.
Liên hệ thiết kế và thi công:
Email: house.vina@gmail.com
Hotline: 0936.104.768