Biệt thự vườn mái thái hiện đại 2 tầng 8.5m mặt tiền BT131

Biệt thự mái thái hiện đại 2 tầng 8.5m mặt tiền BT131

Biệt thự BT131 hiện đại kiểu Pháp nhẹ nhàng được thiết kế mái thái xòe chữ A chú trọng công năng bố trí phong thủy, tiện dụng cho gia đình 3 thế hệ sinh sống. Mẫu nhà mái thái này được tính toán từ kiểu dáng ngoại thất đơn giản, kích thước xây dựng: mặt tiền 8.5m x 17.5m, số tầng tối thiểu: 2 tầng...để tiết kiệm tối đa chi phí đầu tư cho gia đình.

biet-thu-2-tang

Mẫu biệt thự 2 tầng đẹp tại Nghệ An

Thông tin chung về mẫu thiết kế biệt thự mái thái hiện đại:

  • Chủ đầu tư: ông Nguyễn Thanh Hải
  • Địa điểm xây dựng: Nghệ An
  • Phong cách thiết kế: Biệt thự hiện đại mái thái
  • Số tầng: Nhà biệt thự 2 tầng
  • Diện tích đất: 18.5m x 17.5m
  • Diện tích xây dựng: 102m2
  • Mặt tiền biệt thự: 8.5m x Chiều sâu: 14m

Nội dung thiết kế và công năng 2 tầng biệt thự:

  • Tầng 1: Phòng khách 25m2 + Phòng bếp ăn 25m2 + Phòng ngủ 9m2 + Sân ướt 5m2 + WC chung tầng.
  • Tầng 2: Phòng thờ 8m2 + Phòng ngủ Master khép kín 25m2 + Phòng ngủ 13m2 + Phòng ngủ 12m2 + WC chung tầng + Sân chơi 14m2.

Phối cảnh 3D các góc công trình biệt thự đẹp:

biet-thu-hien-dai

Mặt tiền 8.5m mẫu biệt thự mái thái sang trọng

Thiết kế ngoại thất biệt thự này, kiến trúc sư tập trung chú trọng tính đơn giản: "đơn giản tạo nên sự sang trọng". Với kiểu dáng hiện đại, biệt thự cố gắng tạo những khoảng giật thò thụt vừa tiết kiệm diện tích xây dựng, giảm chi phí cho gia đình, vừa đảm bảo kiến tạo sự mạnh mẽ, hình khối dứt khoát, tránh những diện tường nhàm chán, thô cứng. 

Mặt tiền 8.5m là mặt lấy sáng duy nhất của ngôi nhà vì 2 bên nhà xây kín do hàng xóm đã xây dựng; do vậy, hệ thống cửa sổ, cửa chính được tối đa về độ lớn tại mặt tiền 8.5m này. Hệ thống cửa chính sử dụng gỗ tự nhiên bản lớn cỡ to vừa đảm bảo tính an toàn cho không gian sống bên trong, vừa tạo âm hưởng màu sắc tinh tế cho ngoại thất ngôi nhà. Hệ thống cửa sổ sử dụng kính cường lực làm vật liệu chính giúp đón nắng sớm làm rộng không gian nội thất bên trong đồng thời chống tiếng ồn, đảm bảo tính riêng tư cho ngôi nhà.

biet-thu-2-tang-mai-thai

Mẫu biệt thự mái thái hiện đại đẹp tại Nghệ An

Sân chơi trò chuyện cafe tối là không gian lý tưởng ngắm cảnh đêm tụ tập toàn bộ gia đình. View nhìn này cho cái nhìn tổng quan nhất toàn bộ ngoại thất ngôi nhà từ vật liệu lựa chọn, kiểu dáng, vị trí bố trí công năng cũng như hệ thống cửa sổ, cửa chính ngôi nhà. 

Đặc biệt, trong thiết kế ngoại thất ngôi nhà, mái đổ bê tông dán ngói thái trở thành điểm nhấn hút mắt cho ngôi nhà. Mái được phân thành những tiểu phần nhỏ liên kết chặt chẽ thành khối với nhau tránh cảm giác đơn điệu cho ngôi nhà.

Mặt bằng nội thất 2 tầng ngôi biệt thự đẹp:

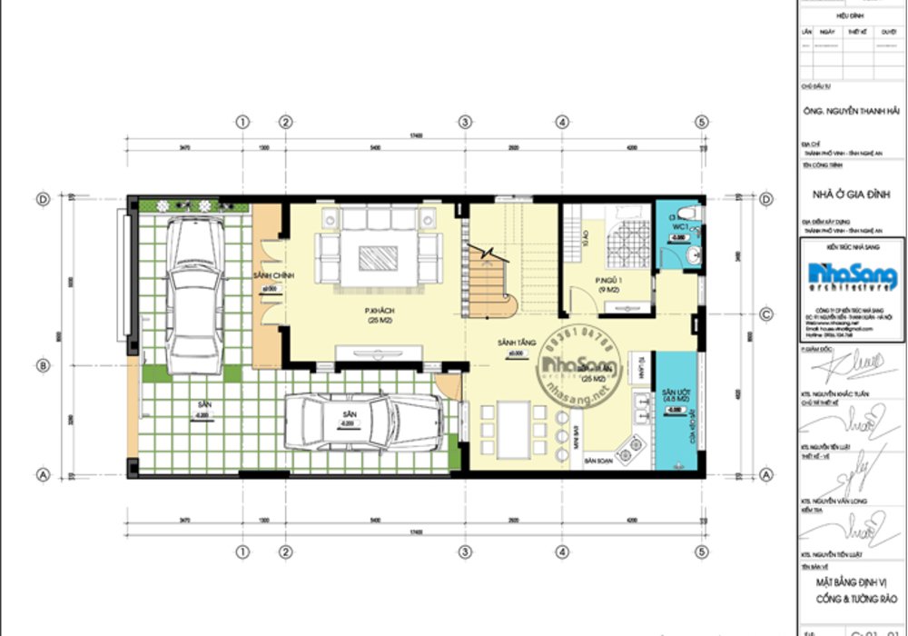
mat-bang-tang-1-biet-thu

Mặt bằng công năng tầng 1 ngôi nhà hiện đại đẹp

Tầng 1 được phân chia không gian theo nhu cầu sử dụng gia đình và thiết kế mở tạo cảm nhận không gian các phòng liên đới, rộng rãi. Một phòng ngủ cho người lớn tuổi được bố trí tại góc yên tĩnh nhất của khu đất.

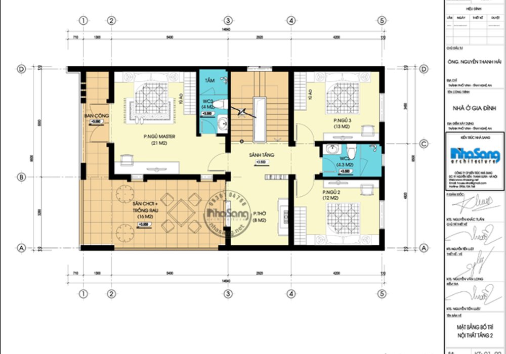
mat-bang-tang-2

Mặt bằng công năng tầng 2 ngôi nhà hiện đại đẹp

Tầng 2 là không gian nghỉ dưỡng quây quần của gia đình bao gồm phòng thờ tổ tiên và 3 phòng ngủ của vợ chồng gia chủ và hai con ; một sân chơi  với bàn cafe tròn thoáng dưới trời đêm cho gia đình nhỏ.

Nhà Sang với đội ngũ kiến trúc sư chuyên nghiệp, kinh nghiệm lâu năm trong thiết kế và thi công hàng nghìn công trình khắp 3 miền tổ quốc luôn muốn lắng nghe tận tâm ý kiến khách hàng, đưa ra những tư vấn hợp lý nhất cùng kkhách hàng kiến tạo ngôi nhà lý tưởng riêng bạn và gia đình.

Liên hệ thiết kế và thi công:

Email: house.vina@gmail.com

Hotline: 0936.104.768

KTS. Nguyễn Tiến Luật - Kiến Trúc Nhà Sang

Xem thêm các mẫu nhà phố đẹp tương tự:

Nhận mẫu nhà miễn phí
Dự án kiến trúc
Dự án nội thất
Xây nhà trọn gói
Bạn muốn thảo luận một dự án ?
Đừng ngại ngần nhắn tin cho chúng tôi. Chuyên gia Nhà Sang sẽ gọi và tư vấn cho bạn.
0.25135 sec| 1443.977 kb