Nhà ống mặt tiền 6m kiểu dáng tân cổ điển ở Bình Phước nổi bật với thiết kế phần mái chóp độc đáo, sang trọng thuộc chủ sở hữu của anh Hoàng ở thành phố Bình Phước. Căn biệt thự nổi bật giữa trung tâm thành phố với sự bề thế và màu trắng tinh tế.
Tân cổ điển là phong cách thiết kế được kết hợp ấn tượng của các hình khối và các hoa văn sắc sảo. Chính vì thế, sự sang trọng được thể hiện rõ ngay từ lần đầu tiên bạn nhìn thấy căn nhà phố 4 tầng này.

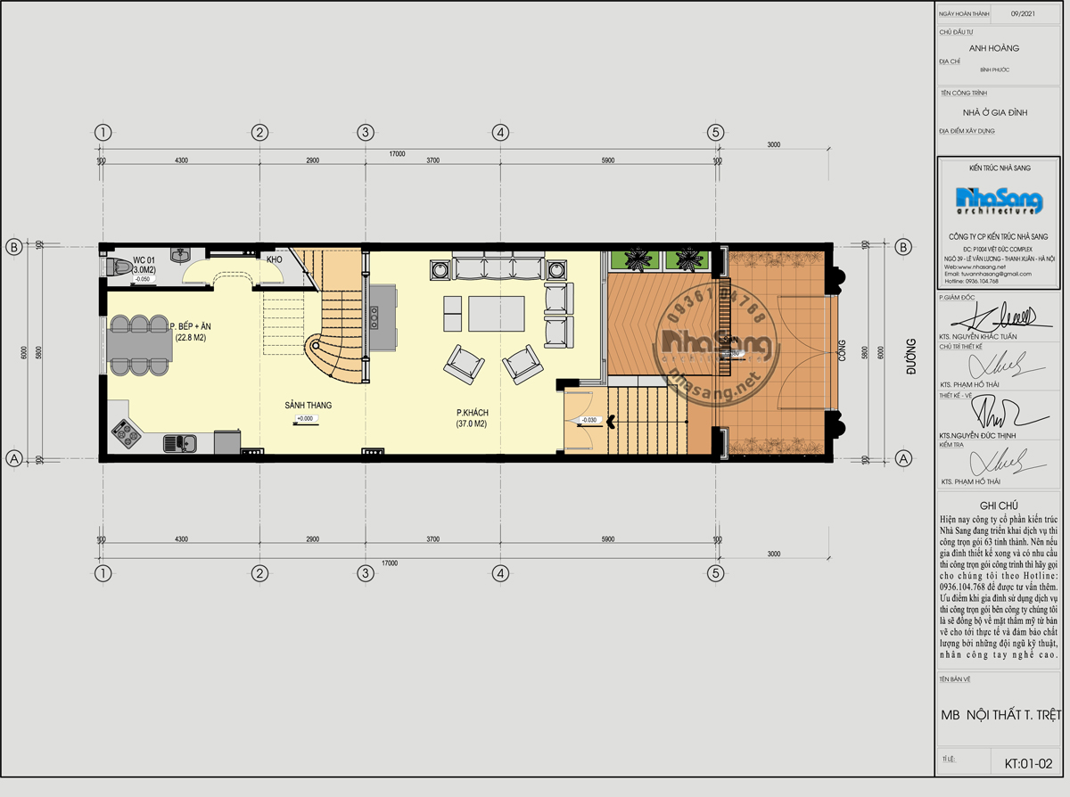
Cấu trúc của mẫu thiết kế nhà ống 6m x 17m nói chung và những mẫu nhà phố đẹp nói riêng thường sâu, hẹp chiều ngang, khó thiết kế, đặc biệt là phải tập trung mô tả kiến trúc mặt tiền, làm đẹp mặt tiền trong khi 3 mặt nhà còn lại không làm đẹp được nên cần phải rất nổi bật trong thiết kế kiến trúc mặt tiền ngôi nhà. Tạo điểm nhấn để mở ra không gian vô cùng thú vị cho mặt tiền mẫu thiết kế nhà đẹp 6m x 17m tân cổ điển.
Phong cách kiến trúc tân cổ điển thiên về cách trang trí đường nét cùng màu sắc được phối hợp một cách tinh tế, hài hòa. Kiến trúc sư đã sử dụng toàn bộ bằng gam màu trắng trong kiến trúc để thể hiện được sự chân thành và thiện cảm đối với mắt nhìn. Có thể bạn không tin nhưng màu trắng chính là gam màu bắt mắt nhất trong tất cả các màu. Ý nghĩa của gam màu này chính là sự mát mẻ, hi vọng, tươi sáng, sạch sẽ và đơn giản. Ngoài ra, phần không gian tầng 1 toàn bộ được ốp đá Mable và sơn giả đá nơi mũ vương miện tạo cảm nhận khối móng vững trãi, kiên cố đỡ nâng cả khối công trình.
Vẻ đẹp hoàn thiện từ những chi tiết cột, tường, lan can ban công bằng hoa sắt vàng nghệ thuật tạo nên sự phối hợp màu sắc một cách tinh tế rồi hòa quyện mạnh mẽ với nhau.

Ngoài những yếu tố về mĩ thuật và không gian, điều quan trọng của chi tiết này cần đảm bảo nhất là yếu tố an toàn, không chỉ vừa hợp chi phí, túi tiền của chủ nhà mà còn phải đảm bảo những thông số về mặt kỹ thuật, là điều kiện cho ban công đạt tiêu chuẩn về mặt an toàn và thi công, sử dụng sau này.
Khi vận dụng các vật liệu vào chi tiết thiết kế, kiến trúc sư đã sử dụng khá thành thạo và thực sự phát huy được hết “trách nhiệm” của nguồn nguyên vật liệu ấy. Cụ thể, mặc dù xuất hiện một cách nhẹ nhàng tại các chi tiết cột, tường với các đường kẻ chỉ đứng nghiêm túc, hệ cột giả cùng với thiết kế ban công đăng đối góp phần đem lại cho không gian kiến trúc của thiết kế nhà phố 4 tầng 6mx 17m đẹp sự sang trọng và tiện nghi vô cùng.

Ngôi nhà ống tân cổ điển đẹp 4.5 tầng của gia đình anh Hoàng không chỉ chinh phục sự chú ý bởi kiến trúc hài hòa, cân đối theo nguyên tắc đối xứng, phương án bố trí công năng ngôi nhà cũng được đánh giá cao bởi sự khoa học, đề cao tính tiện dụng trong sinh hoạt cho gia chủ nhưng vẫn đảm bảo không gian kinh doanh đạt hiệu quả cao nhất.
Ngôi nhà được lựa chọn thiết kế theo phong cách tân cổ điển với những vật dụng nội thất cao cấp, các chi tiết phào chỉ tinh tế, thể hiện sự sang trọng, lộng lẫy cho ngôi nhà.
Phòng khách gây ấn tượng với khách mời bởi sự sang trọng và tinh tế trong cách bố trí và lựa chọn nội thất. Từng mảng, miếng và các đường phào, chỉ và vật dụng décor đều tuân thủ nghiêm ngặt những “tỉ lệ vàng” của phong cách tân cổ điển. Tone màu chính được lựa chọn là trắng, xen lẫn màu nâu gỗ và sắc ánh kim trên bàn ghế, đèn trang trí.

Phong cách tân cổ điển lấy cảm hứng từ nghệ thuật cổ điển kết hợp với nét phóng khoáng trong phong cách hiện đại. Không cầu kỳ, rườm rà và nhấn mạnh bởi những chi tiết điêu khắc tinh xảo nội thất tân cổ điển thể hiện tính nghệ thuật qua những mảng tường, trần, những hình khối cân đối.

Khi thiết kế nội thất theo phong cách tân cổ điển các kiến trúc sư thường chú ý đến tỷ lệ vàng khi ngăn chia các ô, mảng. Điều này mang đến cái nhìn hài hòa, là chìa khóa của thẩm mỹ, nghệ thuật. Không gian được thiết kế theo tỷ lệ vàng giúp cho người xem bị thu hút một cách hoàn toàn tự nhiên ngay cả khi không am hiểu về kiến trúc.

Phía trong là không gian bếp với hệ tủ màu trắng, mặt đá bếp màu đen tạo sự tương phản. Phía trên ô giật cấp được thiết kế với hệ chỉ trần viền, hoa văn tân cổ nhẹ nhàng kết hợp trần giật cấp giúp bố cục không gian trở nên mạch lạc, tương xứng với khu vực bàn ăn phía dưới, tránh cảm giác đơn điệu, nhàm chán.
Tông trắng sáng, vàng nhạt kết hợp nâu gỗ cũng là tone chủ đạo cho toàn bộ thiết kế phòng ngủ. Ba gam màu đem lại cảm giác an tĩnh, tạo vẻ đẹp dịu dàng, thanh lịch cho những không gian nghỉ ngơi. Màu trắng của trần, tường, tiệp màu với ga giường, gối, nệm… chắc chắn sẽ tạo cảm giác êm ái, dễ chịu, muốn chìm vào giấc ngủ. Sắc vàng nhạt tỏa ra từ hệ đèn hắt âm trần và đèn tủ ...mang lại bầu không gian yên tĩnh, giúp giấc ngủ sâu hơn.
Vẻ đẹp và sự tinh tế toát ra từ chính những đường cong tuyệt mỹ trên những chi tiết nội thất, mỗi chi tiết khi đặt cạnh nhau đều nâng đỡ cho nhau tỏa sáng và đồng điệu đến mê hoặc. Sự thanh tao, sang trọng, những điểm nhấn nhẹ nhàng làm nên sức quyến rũ riêng cho phòng ngủ sang trọng này.
Phòng ngủ Master được chia thành hai không gian chính rõ rệt, được ngăn cách bởi bức tường với những nan thoáng nghệ thuật. Diện tích phòng ngủ bố mẹ khá lớn và đặc biệt hơn, không gian phòng còn rất dễ nhận được những ánh sáng tự nhiên. Những đồ vật trang trí nội thất phòng ngủ cổ điển đã khiến căn phòng trở nên sang trọng và tinh tế hơn.
Trong thiết kế phòng ngủ, ánh sáng quyết định đến vẻ đẹp cho căn phòng, do đó việc lựa chọn một hệ thống chiếu sáng vô cùng quan trọng nhằm tạo cho người ngủ cảm giác êm ái và thoải mái nhất.
Nội thất phòng ngủ Master tân cổ sang trọng
Nội thất tân cổ điển chính là sự kết hợp giữa phong cách hiện đại và cổ điển, đồ nội thất không quá nặng nề, phù hợp cả với diện tích căn hộ khiêm tốn và vẫn toát lên được nét lộng lẫy, sang trọng đồng thời cũng rất tiện nghi đấp ứng tốt nhu cầu của cuộc sống hiện đại.
Không gian phòng ngủ trong mẫu thiết kế nội thất tân cổ điển gây thương nhớ với chiếc giường và tủ quần áo màu trắng tinh khiết, cùng với hệ rèm mành mỏng sáng màu, hoạ tiết trang trí sáng và kết hợp với giấy dán tường trang trí màu đồng ở đầu giường, tạo nên một hiệu ứng thu hút và đầy sức sống cho không gian, giúp gia chủ có thể sở hữu không gian sống tiện nghi và thoáng mát.
Phòng ngủ nhỏ cho các bé thường khá chật chội nên hay có xu hướng tối giản hóa các chi tiết thiết kế, đôi khi mang đến cảm giác thiếu tiện nghi, còn đối với các phòng ngủ lớn lại khiến người dùng thấy hơi lẻ loi, trống vắng khi ở một mình. Ngoài ra, nếu như thiết kế nội thất phòng ngủ tân cổ điển cho bé gái mà sử dụng tông màu không phù hợp, ánh sáng không hài hòa tự nhiên có thể ảnh hưởng đến giấc ngủ và quá trình làm việc/học tập của trẻ, đặc biệt là các em nhỏ thường rất nhạy cảm với hình ảnh và các vật dụng trang trí trong phòng .
Khi mà hiểu được tâm lý của trẻ nhỏ và có sự năng động sáng tạo trong tư duy thiết kế, kết hợp với các yếu tố về không gian, màu sắc và ánh sáng cùng với các phụ kiện nội thất phù hợp, chúng ta có thể tạo ra một mẫu phòng ngủ tân cổ điển cho các bé gái cá tính có được độ thẩm mỹ cao, đảm bảo yếu tố tiện nghi và phù hợp với tính cách, sở thích của bé. Và với thiết kế của phòng ngủ tân cổ điển này chắc chắn sẽ là một không gian tuyệt vời cho trẻ.
Các bé gái thường được gắn liền với hình ảnh của những cô công chúa nhỏ xinh xắn, đáng yêu trong những bộ váy hồng nhỏ nhắn, đây là màu sắc được các cô bé luôn yêu thích. Mẫu thiết kế phòng ngủ tân cổ điển cho bé gái được lấy tone màu hồng làm chủ đạo, kéo cả một thế giới cổ tích về cho cô chủ nhỏ.
Trẻ em rất nhạy cảm với những chất liệu không tốt cho sức khỏe, những đồ dùng có mùi quá đặc trưng. Vì vậy, chất liệu nội thất phải được chọn lọc kĩ càng. Với nội thất phòng ngủ tân cổ điển cho bé gái, nên sử dụng các sản phẩm, vật dụng có chất liệu gỗ tự nhiên được phủ bên ngoài lớp sơn Inchem cao cấp, vừa có hương thơm tự nhiên lại an toàn cho các bé, do đó mà các bố mẹ có thể hoàn toàn yên tâm.
Nội thất phòng ngủ tân cổ điển hơi hướng hiện đại đề cao tính thẩm mĩ từ đó đề cao tính sang trọng quý phái của ngôi biệt thự. Đây là một trong những xu hướng thiết kế kiến trúc của trung – thượng lưu. Mẫu phòng ngủ tân cổ điển này lại quyến rũ ánh nhìn bởi sắc màu trắng xám kết hợp kem dịu nhẹ. Giường ngủ lớn với ga giường xám, phần đầu giường được ốp đệm bọc da cao cấp. Đối diện với đó là kệ ty vi âm tường kết hợp với những đèn ngủ mờ ảo tạo nên không gian lý tưởng cho cuộc sống hiện đại.
Ngoài phối cảnh và mặt tiền ở trên, hồ sơ thiết kế kiến trúc còn bao gồm đầy đủ các bản vẽ kỹ thuật các tầng,mặt bằng tường xây, mặt bằng nội thất, mặt đứng, mặt cắt triển khai thi công nội thất (móng, dầm, sàn, chi tiết cấu tạo các công trình ngầm như bể phốt, bể nước, và chi tiết cấu tạo cột, thép), chi tiết cầu thang, ban công, vệ sinh, cửa..., bản vẽ kỹ thuật đi kèm gồm hệ thống điện, nước, thông tin liên lạc, hồ sơ kiến trúc nội thất ốp lát, trần đèn, các bản vẽ ngoài nhà cảnh quan, hàng rào.....Công trình được lên ý tưởng thiết kế dựa trên ý tưởng, phong thủy theo tuổi của gia chủ.
Liên hệ thiết kế và thi công:
Email: tuvannhasang@gmail.com
Hotline: 0936 104 768