Thiết kế Biệt thự kiểu nhà Ống BT14066 chú Phát Hà nội
2 tầng - Mặt tiền 7m - Chiều sâu nhà 11m

Biệt thự kiểu nhà Ống BT14066 chú Phát Hà nội - Phối cảnh

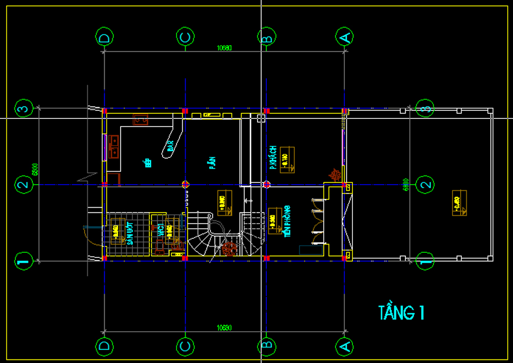
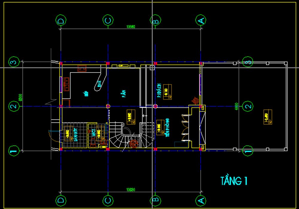
Biệt thự kiểu nhà Ống BT14066 chú Phát Hà nội - Mặt bằng tầng 1

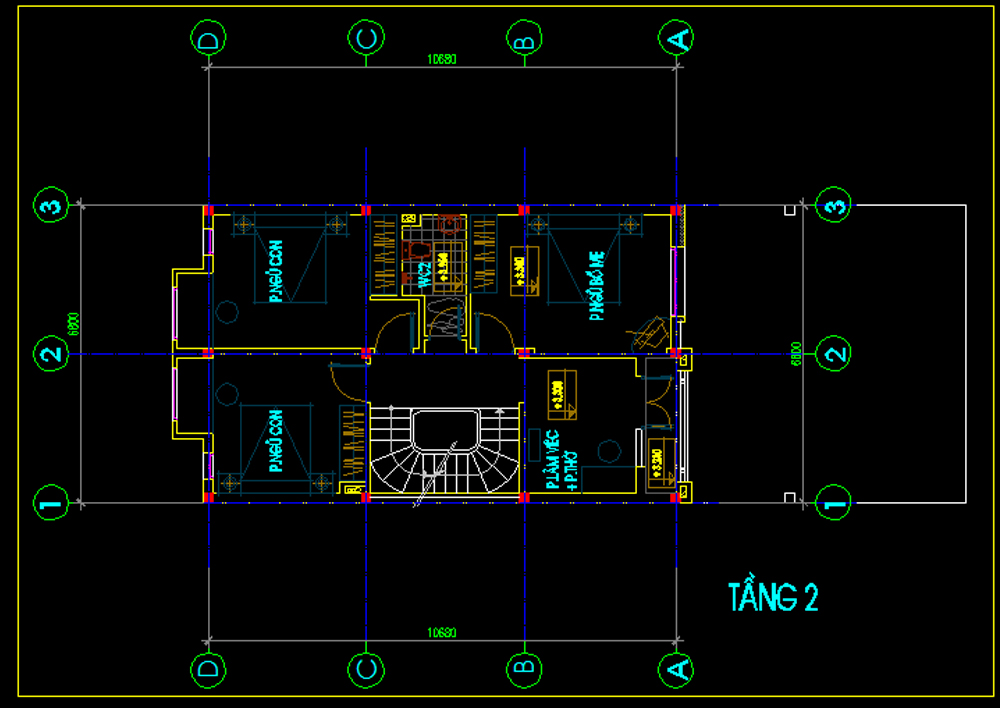
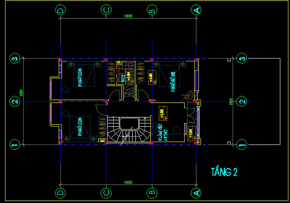
Biệt thự kiểu nhà Ống BT14066 chú Phát Hà nội - Mặt bằng tầng 2

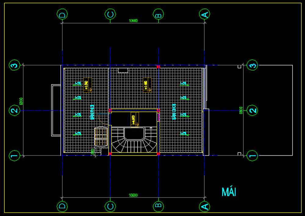
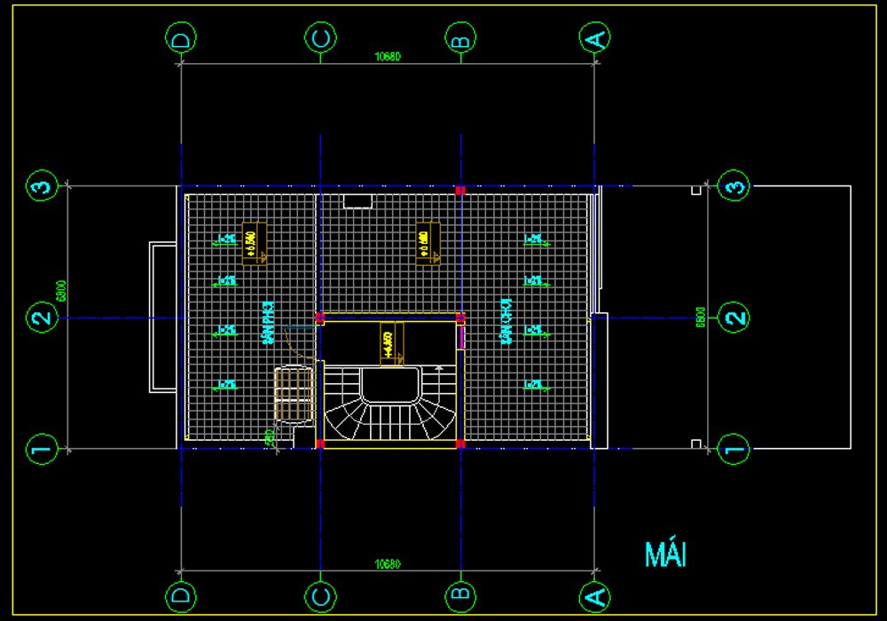
Biệt thự kiểu nhà Ống BT14066 chú Phát Hà nội - Mặt bằng tầng mái