Thiết kế lâu đài 5 tầng kiểu Pháp BT15133

Thiết kế lâu đài 5 tầng kiểu Pháp BT15133

thiet-ke-biet-thu-lau-dai

Thiết kế lâu đài đòi hỏi kinh nghiệm lâu năm ở KTS với khả năng phân tích logic, guu thẩm mỹ ổn định để làm hài hòa, sang trọng mặt tiền. Biệt thự lâu đài 5 tầng với những hoa văn duyên dáng, kiều diễm "nghiêng nước nghiêng thành" cùng tỉ lệ chiều cao, rộng, ngang cân đối hài hòa tạo thế kiên cố, uy nghiêm, hoành tráng; tất cả từ những phù điêu nhỏ đến chiều cao vòm mái, tỉ lệ tầng đều được tính toán tỉ mỉ kiến tạo vẻ đẹp hoàn mỹ cho ngoại thất biệt thự.

Nhiệm vụ thiết kế:

Chào Nhà Sang, tôi là Phương ở Hà Nội, tôi muốn được tư vấn thiết kế nhà biệt thự kiểu Pháp cổ trên mảnh đất 10m x 18.5m trong 2 tháng tới. Nhờ Nhà Sang tư vấn giúp. Yêu cầu công năng sử dụng của gia đình tôi là: Thiết kế biệt thự 4 tầng gồm Phòng khách, Phòng bếp, Phòng ăn, 5 Phòng ngủ và 1 tầng trệt thiết kế gara, phòng người giúp việc, Kho.

Mong sớm nhận được hồi âm từ Nhà Sang.

Cảm ơn quý công ty.

Tư vấn thiết kế:

Chào chị Phương, Nhà Sang đã nhận được yêu cầu tư vấn từ chị, KTS Nhà Sang xin tư vấn cho chị Phương như sau:

- Về phong cách kiến trúc: Thiết kế lâu đài kiểu Pháp 5 tầng

thiet-ke-lau-dai-phap

Thiết kế biệt thự lâu đài 5 tầng kiểu Pháp

Thông tin chung biệt thự lâu đài:

  • Chủ đầu tư: bà Hiền Phương
  • Địa điểm xây dựng: Hà Nội
  • Diện tích xây dựng: 105m2
  • Diện tích đất: 10m x 18.5m

Nội dung thiết kế và công năng 5 tầng mẫu thiết kế lâu đài kiểu Pháp:

  • Tầng trệt: Gara, Phòng giúp việc, Phòng Kho, WC
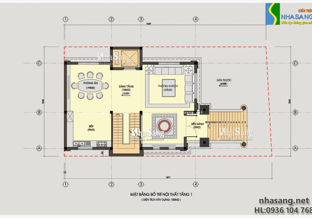
  • Tầng 1: Tiền sảnh, Đại Sảnh, Phòng khách rộng, Sảnh tầng, Phòng ăn, Phòng Bếp.
  • Tầng 2: 2 Phòng ngủ khép kín sang trọng với 1 Phòng ngủ Master đầy đủ tiện nghi.
  • Tầng 3: 2 Phòng ngủ khép kín.
  • Tầng 4: Phòng thờ, Thư viện, Sân thượng ăn ngoài trời, Sân phơi.

Phối cảnh 3D công trình biệt thự lâu đài Pháp:

biet-thu-lau-dai-kieu-phap

Thiết kế lâu đài mặt tiền 10m

Lâu đài lựa chọn gam vàng hoàng kim làm gam màu chủ đạo phối kết hợp hoa văn kiến trúc Pháp cổ tạo nên nét duyên dáng, lộng lẫy riêng. Kiến trúc Pháp được sử dụng khéo léo ở toàn bộ không gian ngoại thất biệt thự. Ấn tượng đầu tiên của công trình có lẽ là sự cao lớn, bề thế với nét hoài cổ như một lâu đài xa hoa trong truyện cổ tích hay trong những giấc mơ về nàng công chúa ngủ trong rừng xưa. Lâu đài được làm sang trọng ở từng nét chi tiết nhỏ nhưng không vì thế mà quá xa đà tiểu tiết khiến biệt thự nặng nề mà được trau truốt vuốt đẹp nhưng vẫn cân đối trong mặt bằng tổng thể chung.

Kiến trúc Pháp với những cách tân phù hợp môi trường khí hậu Việt Nam giúp lâu đài trở thành nơi sống, sinh hoạt lý tưởng. Câu nói truyền miệng của cha ông xưa đến nay cũng vẫn rất đúng: "ở nhà Tây, lấy vợ Nhật". Nếu như vợ Nhật xinh xắn, nết na, đảm đang một mực vì gia đình thì biệt thự kiến trúc Pháp -"ở nhà Tây" với những cách tân hợp thời tiết nhiệt đới gió mùa Việt Nam là điểm hồi sức hoàn hảo sau một ngày làm việc vất vả. Vậy điều gì khiến "nhà Tây" là điểm dưỡng sức lý tưởng như vậy?

Đầu tiên, sự phù hợp kiến trúc Pháp với thiên nhiên, khí hậu Việt có lẽ phải kể đến là việc xây dựng móng nhà cao, khỏe tạo thế kiên cố giữa tháng 7 bão lụt và giúp chống hắt nhiệt nóng từ mặt đất vào những trưa hè oi bức. 

Các tầng biệt thự được nối liên hoàn bằng hệ cột trụ vuông tròn to khỏe và đặc biệt, kiến trúc sáng tạo phù hợp với thời tiết Việt là hệ cửa sổ, cửa ra vào dày đặc thông thoáng khắp các hướng giúp giao hòa không gian trong và ngoài biệt thự, giúp nội thất luôn thông thoáng.

Mái biệt thự là phần cuối cùng hoàn thiện không gian ngoại thất. Trong kiến trúc lâu đài, mái vòm cao vút tạo khoảng lớn không khí đệm tránh hấp tản nhiệt từ mái, giúp cân đối chiều cao với view nhìn trực diện bên ngoài và đặc biệt mái là điểm giúp lâu đài nổi lên trên cảnh quan mặt bằng chung và hút mắt người ngắm dù bất kỳ vị trí nào.

thiet-ke-lau-dai-phap

Thiết kế biệt thự 5 tầng kiểu Pháp

Cửa sổ nhỏ mái vòm mang nét hoài cổ xưa giúp lấy thoáng toàn bộ hông bên biệt thự. Quạt bán nguyệt viên trung tâm hông phải làm điểm nhấn đầy độc đáo giúp hút mắt khi bỏ qua các chi tiết hoa văn, phào chỉ phức tạp. 

thiet-ke-san-vuon-biet-thu-lau-dai

Mặt bằng công tầng 1 lâu đài

Mọi góc diện tích phòng đều được tính toán tỉ mỉ dựa theo phong thủy và tuổi gia chủ. Không gian sân vườn được tính toán tỉ mỉ, tích hợp tối đa giúp mang không khí xanh tươi mới giúp nâng cao chất lượng cuộc sống gia đình gia chủ.

Nhà Sang với các KTS có kinh nghiệm lâu năm trong thiết kế với guu thẩm mỹ ổn định, am hiểu tường tận kiến trúc Pháp và văn hóa, địa lý Việt cam kết sẽ sáng tạo hết mình mang lại không gian sống lý tưởng cho gia đình gia chủ.

Liên hệ thiết kế và thi công:

Email: house.vina@gmail.com

Hotline: 0936 104 768

KTS: Nguyễn Khắc Tuấn - Kiến Trúc Nhà Sang

Xem thêm các mẫu biệt thự lâu đài đẹp tương tự:

Nhận mẫu nhà miễn phí
Dự án kiến trúc
Dự án nội thất
Xây nhà trọn gói
Bạn muốn thảo luận một dự án ?
Đừng ngại ngần nhắn tin cho chúng tôi. Chuyên gia Nhà Sang sẽ gọi và tư vấn cho bạn.
0.24505 sec| 1450.992 kb