Biệt thự Pháp mặt tiền 10m như khu nghỉ dưỡng sang trọng BT16014

Biệt thự Pháp mặt tiền 10m như khu nghỉ dưỡng sang trọng BT16014

Biệt thự Pháp tân cổ điển được thiết kế trên mảnh đất gần như vuông: 10 x 10.5m và theo yêu cầu CĐT: lược bỏ hoàn toàn các chi tiết hoa văn, phào chỉ phức tạp. Vậy lấy gì làm điểm nhấn cho mặt tiền 10m với chiều cao 3 tầng này?

Thiết kế biệt thự Pháp luôn đòi hỏi ở KTS guu thẩm mỹ ổn định với chuyên môn nghiệp vụ cao, am hiểu tường tận từng nét đặc trưng kiến trúc phương Tây cũng như văn hóa, địa lý và khí hậu từng vùng miền Việt đồng thời phải làm việc, lắng nghe, thấu hiểu khách hàng để tạo ra được những kiệt tác kiến trúc biệt thự tuyệt sắc vừa đảm bảo bền vững với thời gian khi hài hòa với thời tiết địa phương, vừa nói lên được guu thẩm mỹ, cá tính riêng chủ đầu tư.

biet-thu-3-tang-kieu-phap-tan-co-dien

Biệt thự Pháp tân cổ điển

Thông tin chung về biệt thự kiểu Pháp 3 tầng:

  • Chủ đầu tư: Ông Đường Ngọc Diệp
  • Địa điểm xây dựng: Sóc Sơn - Hà Nội
  • Diện tích đất: 10m x 10.5m
  • Diện tích xây dựng: 105m2 gồm: mặt tiền biệt thự: 10m và chiều dài: 10.5m
  • Tổng diện tích sàn: 272m2
  • Số tầng thiết kế: Biệt thự 3 tầng
  • Phong cách kiến trúc: Biệt thự Pháp tân cổ điển
  • Tổng mức đầu tư: 1.4 tỷ (chưa bao gồm nội thất rời)

Nội dung thiết kế và công năng 3 tầng biệt thự Pháp mặt tiền 10m:

  • Tầng 1 với diện tích sàn 105m2 gồm: Phòng khách 28m2, Phòng ăn kết hợp phòng bếp 17m2, 1 Phòng ngủ 18m2, WC chung 5m2.
  • Tầng 2 với diện tích sàn 98m2 gồm: 1 Phòng ngủ 19m2 có WC khép kín 5m2, 2 Phòng ngủ 15m2 và 18m2 với WC chung 5m2.
  • Tầng 3 với diện tích sàn 69m2 được thiết kế: Phòng thờ 18m2, Phòng karaoke 19m2, WC chung 5m2 và Sân chơi 24m2.

Phối cảnh biệt thự Pháp trên diện tích gần như vuông:

mat-tien-10m-biet-thu-phap

Biệt thự Pháp với mặt tiền 10m

Chủ đầu tư là người yêu thích kiến trúc Pháp sang trọng, đẳng cấp với phong cách đăng đối, hài hòa nhưng lược bỏ hoàn toàn các chi tiết hoa văn phào chỉ phức tạp, ông yêu thích vẻ đơn giản, thanh lịch. Chính vì vậy, tạo nên được nét nhấn hút mắt người nhìn hay kiến tạo nên vẻ đẹp hài hòa khó cưỡng mà không dùng đến phù điêu, gờ phào mềm mại làm điểm nhấn màu; biệt thự theo lối Pháp và phải kiến tạo vẻ sang trọng, kiên vững cùng thời gian nhưng không sử dụng hoa văn, phào chỉ Pháp mà phải thổi hơi hướng hiện đại vào trong mẫu thiết kế là yêu cầu khó khi thiết kế biệt thự Pháp này

Chính vì vậy, KTS khéo léo kết hợp một số đặc trưng của kiến trúc Pháp phù hợp với thời tiết nhiệt đới gió mùa Việt như hệ cửa sổ, cửa ra vào nhiều các các mặt với thiết kế cửa lớn lấy thoáng và mang năng lượng, đổi gió cho cả không gian nội thất bên trong vào mùa hè và giữ ấm với cửa kín mùa đông. Đặc biệt, để kiến tạo nên vẻ hiện đại, tinh tế, biệt thự không dùng cửa gỗ chớp theo lối pháp xưa mà kính chịu lực đắt giá được đưa vào thiết kế kết hợp gỗ tự nhiên sơn trắng hợp tone với gam màu chung lý tưởng của ngoại thất. Cũng để ăn tone với gam màu chủ đạo này, cửa chính ra vào với chất liệu gỗ dày, tốt cũng được sơn trắng tránh lạc sắc độ, gây cảm giác hụt màu khi chiêm ngắm ngoại thất biệt thự.

Nhìn ngắm ngoại thất biệt thự này, bạn sẽ bị hút mắt bởi điểm nào? Có lẽ chính sự phối kết hài hòa, ăn ý của toàn bộ các chi tiết nhỏ giúp gắn kết, hòa quyện tạo nên vẻ đẹp hoàn hảo thuyết phục chủ đầu tư.

- Để kiến tạo nên vẻ bền vững, chắc chắn đỡ nâng cả khối công trình, biệt thự được sơn cam năng động, khỏe mạnh toàn bộ móng và đá rối gam cam sáng tạo điểm nhấn nhẹ nhàng trong mảng màu này giúp chân tường không bị vấy bẩn và giúp chống ẩm mốc, chống nước.

- Về phần kiến tạo nên vẻ hiện đại, tinh tế riêng, biệt thự Pháp tân cổ điển này lựa chọn gam trắng trẻ trung, sáng, sang làm gam màu chủ đạo và tránh nhàm chán khi lược bỏ hoàn toàn các chi tiết hoa văn, phào chỉ theo yêu cầu chủ đầu tư bằng việc tạo những sóng nhịp ngang bắt mắt giúp cân bằng độ cao và chiều ngang mặt tiền 10m cho biệt thự. Đồng thời việc phối kết hợp việc sử dụng kính cường lực tạo khoảng hở nối liền không gian trong ngoài nội thất ở các mặt tường khác nhau và việc nhấn màu đơn giản nhẹ nhàng với lan can sắt hoa văn mềm mại ở các hiên tầng cũng là những mảnh ghép nhỏ kiến tạo nên vẻ hiện đại sang chảnh riêng cho biệt thự.

- Kiến tạo nên vẻ sang trọng, đẳng cấp theo lối Pháp tân cổ điển, biệt thự khéo léo đưa mái ngói thái đắt giá ở các góc mặt khác nhau, chỉ chút sắc đỏ nhấn nhá che nắng nóng, chắn mưa bay các cửa sổ mặt bên đã đủ tạo ấn tượng đặc sắc riêng cho ngoại thất biệt thự này. Cửa vòm cũng được KTS đưa vào tạo điểm nhấn khác biệt so với những cửa hiện đại khác, gợi chút hoài cổ xưa đẹp, sang.

Tất cả các chi tiết bé nhỏ đều được KTS tính toán kỹ lưỡng về sắc độ, điểm nhấn và ảnh hưởng của nó đến bức tranh ngoại thất chung biệt thự; do vậy, việc kiến tạo nên vẻ đẹp hoàn hảo của biệt thự này không phải đến từ những chi tiết nhấn nhá hay sắc độ cảm quan đưa vào trong thiết kế mà là sự ăn ý trong từng chi tiết, bộ phận nhỏ.

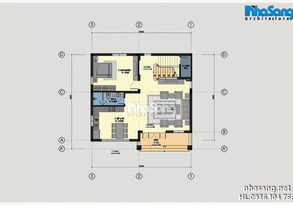
mat-bang-biet-thu-phap

Mặt bằng công năng tầng 1 biệt thự Pháp 10m x 10.5m

Tất cả mọi góc diện tích đề được tính toán dựa theo phong thủy và tuổi gia chủ và được tối đa hóa để nới rộng không gian sống, tận dụng triệt để mọi góc chết mang lại không gian sinh hoạt rộng thoáng nhất có thể cho gia chủ.

Nhà Sang với các KTS có kinh nghiệm lâu năm trong thiết kế với guu thẩm mỹ ổn định, khả năng sáng tạo phong phú, luôn tận tâm lắng nghe khách hàng, mang lại không gian sống lý tưởng nhất cho bạn và gia đình. 

Liên hệ thiết kế và thi công:

Email: house.vina@gmail.com

Hotline: 0936 104 768

Kiến Trúc Nhà Sang

Xem thêm các mẫu biệt thự Pháp đẹp tương tự:

Nhận mẫu nhà miễn phí
Dự án kiến trúc
Dự án nội thất
Xây nhà trọn gói
Bạn muốn thảo luận một dự án ?
Đừng ngại ngần nhắn tin cho chúng tôi. Chuyên gia Nhà Sang sẽ gọi và tư vấn cho bạn.
0.24700 sec| 1449.391 kb