Mẫu biệt thự đẹp phong cách Pháp kết hợp ở và kinh doanh cafe - khách sạn BT14182

Biệt thự đẹp phong cách Pháp kết hợp ở và kinh doanh cafe - khách sạn BT14182

Biệt thự đẹp 4 tầng kiến trúc Pháp BT14182 là mẫu biệt thự được thiết kế với công năng kết hợp ở và kinh doanh khách sạn của gia chủ, gồm không gian ở của gia đình, không gian kinh doanh cafe và không gian kinh doanh khách sạn.

Mẫu biệt thự đẹp đến từng góc cạnh:

mẫu thiết kế biệt thự đẹp kiến trúc Pháp bt14182

Mẫu thiết kế biệt thự đẹp phối cảnh góc chính

Phối cảnh góc chính của mẫu thiết kế biệt thự Pháp 4 tầng. Thiết kế ấn tượng với nền tường sậm màu để nổi bật chi tiết hoa văn của các ô cửa.

Biệt thự nhấn mạnh vào việc sử dụng hệ cột trắng to khỏe mạnh với những cột giả nhỏ cửa sổ làm tone đệm bật cột trụ chính vững trãi. Mặt tiền 12m được làm ấn tượng với sảnh 4 cột trước sau to làm chắc cả khối công trình, quạt bán nguyệt viên mãn làm sang thêm không gian ngoại thất vẫn với gam trăng sáng sang chảnh chạy dọc kéo dài độ cao biệt thự hút mắt tạo cảm giác thanh cao, tinh túy với cột dài chạy dọc tầng 2 và tầng 3. Mái thái không sử dụng mà thay vào đó là mũ vương miện quyền uy làm điểm nhấn cuối cùng kiện toàn ngoại thất với thiết kế mái bằng ngang theo yêu cầu gia chủ. 

Thông tin chung về mẫu thiết kế biệt thự đẹp phong cách Pháp:

  • Chủ đầu tư: A. Lâm - Hưng Yên
  • Diện tích xây dựng: 12m x 12m (144m2)
  • Diện tích đất: 15m x 18m
  • Số tầng cao: 3 tầng nổi, 1 tầng bán hầm
  • Phong cách kiến trúc: kiến trúc Pháp

Thiết kế công năng các tầng mẫu thiết kế biệt thự đẹp phong cách Pháp:

  • Tầng hầm: Không gian gara
  • Tầng 1: Bếp nấu - Quầy bar - Không gian kinh doanh cà fe
  • Tầng 2: 4 Phòng ngủ khép kín kiểu khách sạn (xem thêm thiết kế khách sạn cho người nước ngoài thuê)
  • Tầng 3: 1 Phòng ngủ khép kín - Bể bơi trên mái

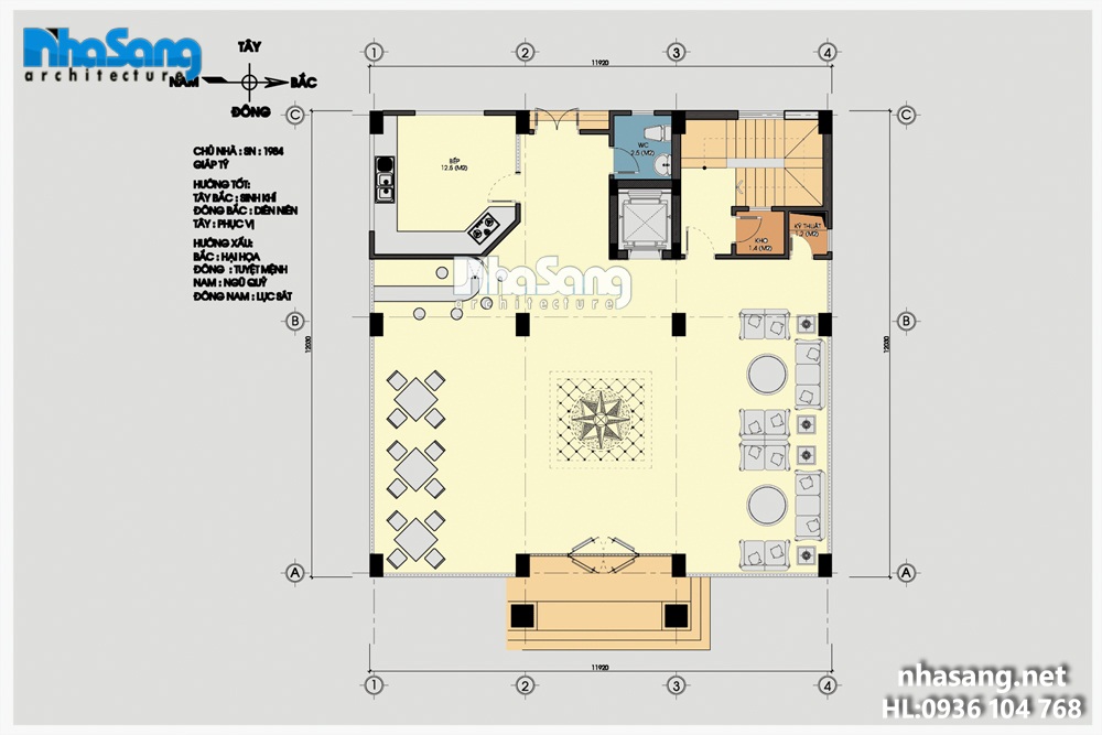
mặt bằng công năng tầng 1 biệt thự pháp bt14182

Mặt bằng tầng 1 mẫu thiết kế biệt thự đẹp phong cách Pháp với mục đích kinh doanh cafe

Với mục đích kinh doạnh, biệt thự được thiết kế sảnh tầng 1 rộng, thoáng, không gian quây bao xung quanh, hệ cửa sổ xương gỗ tự nhiên sang trọng, kính ô lớn giúp view trọn cảnh quan thiên nhiên bên ngoài.

mặt bằng công năng tầng 2 biệt thự pháp bt14182

Mặt bằng tầng 2 mẫu thiết kế biệt thự đẹp phong cách Pháp với 4 phòng ngủ khép kín kiểu khách sạn

Tầng 2 được thiết kế là không gian sống và sinh hoạt gia chủ. Để đáp ứng công năng sử dụng cao với diện tích có hạn, KTS Nhà Sang phải lên phương án, tính toán tỉ mỉ từng góc diện tích để tối đa hóa đất, nới rộng không gian sống và sinh hoạt cho gia đình gia chủ.

Với kiến trúc Pháp, kiến trúc Nhà Sang sẽ thiết kế sáng tạo để mỗi công trình sẽ có sự khác biệt đạt tính thẩm mỹ cao và phù hợp với yêu cầu khách hàng và khuôn đất. Xây dựng nhà ở theo kiến trúc Pháp và Tân cổ điển, công trình sẽ không bị lỗi mốt và lưu giữ được cho các thế hệ sau.

Liên hệ thiết kế và thi công:

Hotline: 0936 10 47 67

Email: house.vina@gmail.com

 kiến trúc Nhà Sang

Xem các mẫu thiết kế cho khu đất tương tự:

Nhận mẫu nhà miễn phí
Dự án kiến trúc
Dự án nội thất
Xây nhà trọn gói
Bạn muốn thảo luận một dự án ?
Đừng ngại ngần nhắn tin cho chúng tôi. Chuyên gia Nhà Sang sẽ gọi và tư vấn cho bạn.
0.31577 sec| 1434.211 kb