Thiết kế nhà lô phố kết hợp kinh doanh là một bài toán khó. Đối với các kiến trúc sư, việc thiết kế không chỉ khó khăn do việc sáng tạo bị bó hẹp trong diện tích đất nhỏ, mặt tiền cũng không quá lớn, tuy nhiên lại đòi hỏi về tính thẩm cũng như công năng sử dụng rất cao. Bởi với vị trí thuận lợi để kinh doanh như vậy thì mỗi tấc đất là tấc vàng
Về kiến trúc ngoại thất, chủ đầu tư đã lựa chọn phong cách hiện đại tạo ấn tượng về sự sang trọng và năng động cho không gian để phù hợp với ngành hàng kinh doanh của gia đình. Các diện tường được thiết kế cách điệu, tạo hình khối chắc khỏe và ấn tượng. Ban công nhà được trang trí lan can kính và bồn hoa tạo sức sống tươi trẻ cho ngôi nhà.
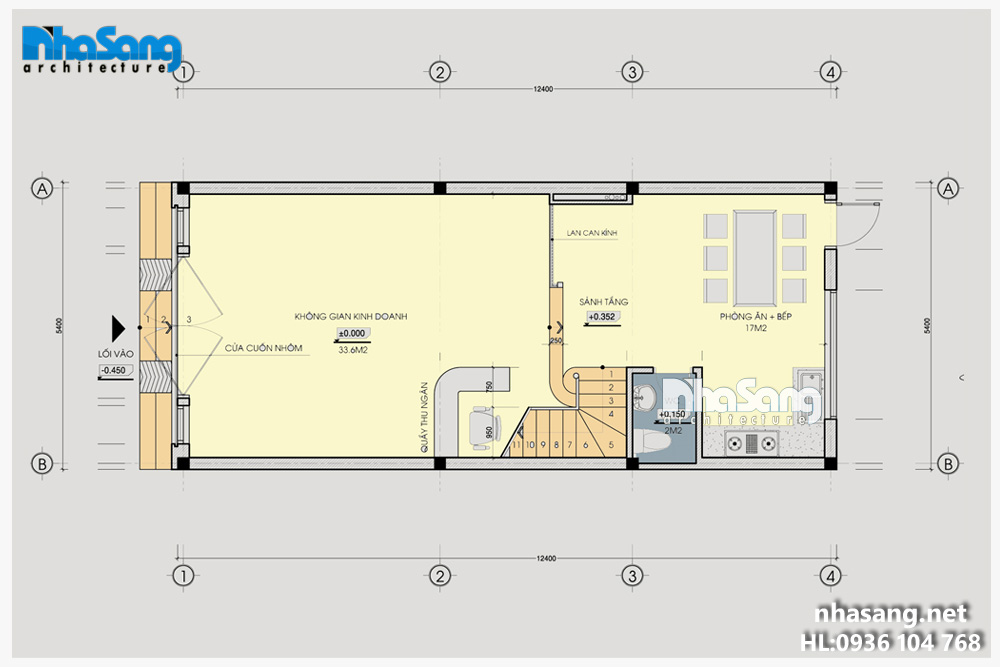
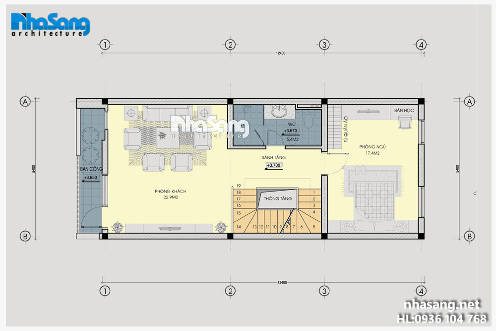
Về công năng sử dụng, tầng 1 tận dụng tối đa diện tích phục vụ việc kinh doanh ; các tầng 2, 3, 4 là không gian riêng để tiếp khách, giải trí và nghỉ ngơi của các thành viên trong gia đình.
Với diện tích sử dụng khá nhỏ so với yêu cầu cầu năng sử dụng của gia chủ, do đó, biệt thự được thiết kế với không gian mở tạo độ thoáng tối đa nới rộng không gian sống và sinh hoạt gia chủ.
Hồ sơ thiết kế bao gồm các phối cảnh 3d kiến trúc, mặt tiền, các mặt bên, chi tiết mặt bằng công năng, mặt bằng bố trí nội thất các tầng, mặt cắt, chi tiết kỹ thuật thi công, bản vẽ thiết kế kết cấu, thiết kế điện chiếu sáng, sinh hoạt, cấp thoát nước sinh hoạt... tiểu cảnh sân vườn, chi tiết cổng, tường rào...
Toàn bộ hồ sơ thiết kế công năng các phòng và kiến trúc đều được tư vấn hợp theo Phong thủy và tuổi của chủ đầu tư. Kích thước các phòng, chiều cao nhà và kích thước cửa đều theo kích thước phong thủy.
Liên hệ thiết kế thi công:
Email: house.vina@gmail.com
Hotline: 0936 104 768




