Thiết kế nhà ống với Kiến trúc Pháp luôn tạo được mặt tiền đẹp, đặc biệt với những lô đất có mặt tiền 5m thì tỉ lệ cột trang trí, chi tiết hoa văn và tỉ lệ cửa so với chiều rộng mặt tiền sẽ rất hài hòa. Công trình được xây dựng trên trục đường giao thông chính của khu dân cư, với chiều cao 5 tầng mẫu nhà ống kiến trúc Pháp BT14170 sẽ nổi bật trên khu phố. Công trình được thiết kế cho gia đình anh Cường - khu Ninh Kiều - thị trấn Trúc Sơn - huyện Chương Mỹ - Hà Nội.
Tôi dự định xây nhà ống 4,5 tầng diện tích đất 5m x 15m, bố trí phòng sao cho hợp lý nhất. Tang 1 tôi để xe và bếp ăn. Tầng 2 là phòng khách và 1 phòng ngủ. Tầng 3 làm 2 phòng ngủ, tầng 4 gồm 2 phòng chức năng ngủ hoặc làm việc hoặc phòng hát. Tầng 5 để phòng thờ muốn sân vườn gọn gàng trên sân thượng. Đặc biệt tôi muốn thiết kế theo kiến trúc pháp. đầu tư khoảng 1 tỷ rưỡi.

Mặt bằng bố trí công năng tầng 1: Thiết kế không gian gọn gàng ngăn nắp với Phòng ăn có vách kính đẩy để có thể nắp được điều hòa.
Tầng 1 được sơn giả đá mable màu vàng. Các tầng trên với hệ cột trang trí thanh thoát, các ô cửa gỗ tự nổi bật trên nền sơn màu trắng. Các ban công được thiết kế nhỏ xinh mang tính chất trang trí.

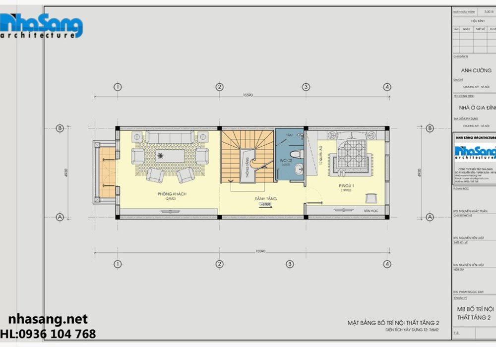
Mặt bằng thiết kế công năng tầng 2 với Phòng khách rộng và thoáng. Phòng ngủ diện tích vừa phải để bố trí nội thất phòng ngủ đẹp, cửa sổ mở được phía sau nhà lấy ánh sáng và trao đổi không khí.

Mặt bằng thiết kế công năng tầng 5 với Phòng thờ và sân thượng.

Chi tiết kiến trúc với tỷ lệ hài hòa của phần thân và mái công trình nhà ống 5 tầng mặt tiền 5m kiến trúc Pháp

Hồ sơ thiết kế bao gồm các phối cảnh 3d kiến trúc, mặt tiền, các mặt bên, chi tiết mặt bằng công năng, mặt bằng bố trí nội thất các tầng, mặt cắt, chi tiết kỹ thuật thi công, bản vẽ thiết kế kết cấu, thiết kế điện chiếu sáng, sinh hoạt, cấp thoát nước sinh hoạt... tiểu cảnh sân vườn, chi tiết cổng, tường rào...
Toàn bộ hồ sơ thiết kế công năng các phòng và kiến trúc đều được tư vấn hợp theo Phong thủy và tuổi của chủ đầu tư. Kích thước các phòng, chiều cao nhà và kích thước cửa đều theo kích thước phong thủy.
Liên hệ thiết kế thi công:
Email: house.vina@gmail.com
Hotline: 0936 104 768