|
1. Mẫu biệt thự |
: BT2030 |
2. Số tầng |
: 4 tầng + 1 tầng hầm |
||
|
3. Chủ đầu tư |
: Anh Gia Khánh |
4. Địa chỉ |
: Cầu Giấy - Hà Nội |
||
|
5. Mặt tiền |
: 9m |
6. Chiều sâu |
: 11.2m + Sảnh 2.5m |
||
|
7. Kiến trúc sư |
: Nhà Sang |
8. Năm |
: 2020 |
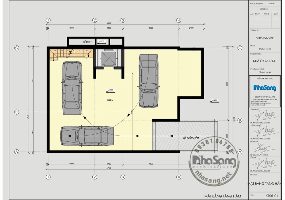
Tầng hầm: Gara 3 xe oto
Tầng 1: Phòng khách 27.5m2 + Phòng ăn 20.1m2 + Bếp nấu 10.5m2 + WC chung 3m2 + Phòng đa năng
Tầng 2: Phòng ngủ 1 32.8m2 + Phòng ngủ 2 40m2
Tầng 3: Phòng ngủ 3 32.8m2 + Phòng ngủ 4 40m2
Tầng 4: Phòng ngủ 5 32.8m2 + Phòng ngủ 6 40m2
Tầng tum: Phòng thờ 19m2 + Khu giặt phơi trong nhà + Sân thượng
Tầng hầm: 105m2
Tầng 1: 105m2 + Sảnh
Tầng 2: 105m2
Tầng 3: 105m2
Tầng 4: 105m2
Tầng tum: 75m2 + Sân thượng
Đối với những thiết kế nhà ống, nhà phố ở đô thị, thành phố lớn có đặc thù hạn chế về quỹ đất cho việc đỗ xe nên việc thiết kế nhà ở biệt thự có tầng hầm rất cần thiết. Biệt thự có tầng hầm là giải pháp chỗ để xe thoải mái, thuận tiện cũng như tăng cường lưu trữ các vật dụng ở dưới cho không gian sống gọn gàng, tăng công năng sử dụng. Biệt thự phố xây dựng trên lô đất có diện tích mặt tiền 10m, chiều sâu 15.3m, chiều ngang nhà 9m. Diện tích tầng hầm 101 m2 cung cấp chỗ để cho 3 xe oto dễ dàng đánh lái, khu thang máy, và lối lên cửa hầm. Thiết kế tầng hầm vượt nhịp 7m. Khoảng cách giữa 2 cột là 7m, để trốn cột giữa nhà. Bố trí hầm không có cột giữa sẽ được không gian rộng, linh hoạt, để đc 3 xe ô tô.
Mặt tiền biệt thự phố 9m chừa 1m làm lối đi nhỏ bên hông đi ra sảnh phụ và sau nhà. Biệt thự có 2 mặt tiền được thiết kế theo phong cách tân cổ điển mái thái. Thiết kế mặt tiền biệt thự theo phong cách Châu Âu, nhẹ nhàng tinh tế. Biệt thự chia thành 2 khối kiến trúc cân đối với khối chính có hệ cột đường kính lớn, thân cột điểm nhấn nhiều đường chỉ thẳng chìm nổi song song đẹp mắt. Tầng 1 có 2 cột sảnh vuông, tầng 2 đến tầng 3 sử dụng hệ cột tròn - dài - kích thước lớn độc đáo nhưng đòi hỏi thiết kế phải dày kinh nghiệm, và đội ngũ thi công có tay nghề cao mới thực hiện được.
Hình ảnh biệt thự tân cổ điển 4 tầng có tầng hầm lược bỏ phần cổng, giúp khách hàng dễ dàng hình dung về ngôi nhà tương lai của mình. Ngoại thất biệt thự chủ yếu sử dụng hệ cửa sổ, cửa ban công khung gỗ kính cường lực. Vừa hiện đại, tiện nghi lại đảm bảo tính thẩm mỹ và an toàn cho căn nhà. Tầng 2, tầng 3, tầng 4 đều có ban công tạo không gian mở linh hoạt cho phòng ngủ.
Mẫu biệt thự mặt tiền 10m thiết kế cổng đôi thuận tiện cho việc đi oto xuống hầm hay đón tiếp khách. Cổng biệt thự thiết kế có mái thái che chắn cẩn thận. Cánh cổng nhôm đúc có hệ điều khiển từ xa nên khi ra vào không cần xuống xe đóng mở thủ công, rất hữu ích. Vật liệu nhôm đúc được sử dụng xuyên suốt trong các không gian biệt thự - từ cổng, ban công, đến sen hoa phòng khách, phòng ngủ.
Xu hướng thiết kế nội thất biệt thự theo phong cách tân cổ điển ngày càng được nhiều người ưa chuộng, chủ yếu giành cho những chủ đầu tư có tiềm lực kinh tế mạnh. Để có một không gian sống xa hoa như vua chúa thì việc hoàn thiện ngoại thất cho đến nội thất đều cần đến một khoản kinh phí lớn. Do đa số các đồ nội thất tân cổ điển được làm từ vật liệu cao cấp như gỗ quý, dát vàng... và thiết kế cũng rất tinh xảo, độc hiếm.
Phòng khách là bộ mặt của biệt thự, là nơi tiếp đón khách nên cần sự trang trọng, vừa phô trương được sự giàu có của chủ nhà lại vừa thể hiện sự tôn trọng đối với khách quý. Phòng khách có tone màu sáng pastel làm chủ đạo, rất thanh lịch mà dễ phối đồ nội thất. Kệ tivi thiết kế đặc biệt dành riêng chỉ cho căn phòng này. Chiều dài 6.2m bằng chiều ngang phòng khách. Kệ tivi gỗ gõ sơn trắng, hoa văn tân cổ điển nhẹ nhàng. Phía trên là quạt gỗ quý với bức tranh Mã đáo thành công chạm khắc nổi đặc trưng của văn hóa Á Đông. Bộ bàn ghế gỗ lim nguyên khối được đục tay hoa văn theo kiểu hoàng gia Châu Âu, vừa hiện đại lại rất Việt Nam. Các chủ nhà Việt thường thích những bộ bàn ghế gỗ bởi bền đẹp theo thời gian, ngồi chắc chắn, nặng tay, dễ dang vệ sinh hơn các chất liệu hiện đại như da, nỉ, nhung...
Toàn bộ diện tích sàn tầng 1 hơn 100m2 được tập trung cho không gian phòng khách và bếp ăn là chính. Bộ bàn ghế phòng ăn được đặt giữa không gian rộng 20m2, và bếp nấu rộng 11m2. Bộ bàn ăn dài 8 ghế khung gỗ bọc da bò Italia chính hãng đem đến vẻ đẹp sang trọng đẳng cấp cho biệt thự. Bàn ăn màu sắc trang nhã, chất liệu bề mặt da và gỗ được xử lý cực kỳ thân thiện với người sử dụng đên lại trải nghiệm tinh tế và bữa ăn thêm ngon miệng, gắn kết tình cảm gia đình.
Dọc chiều dài phòng ăn và phòng bếp đều có cửa sổ khung gỗ kính cường lực, nên khi nấu ăn có thể mở hết ra cho mùi không ám vào nhà lâu ngày gây ẩm mốc, hỏng đồ nội thất. Ngoài ra bình thường chỉ cần kéo mở rèm cũng có thể đón nắng làm sáng bừng nội thất. Quạt trần cổ điển đồng thời như một chiếc đèn treo trang trí tuyệt vời cho phía trên bàn ăn thêm ấm cúng. Cửa ngách dễ dàng ra sân ướt sau nhà, cũng như đi lại nấu nướng khi nhà có khách, mà không cần đi qua cửa chính.
Khu vực bếp có tần suất sử dụng cao và rất nhiều vật dụng hỗ trợ nấu ăn, gia vị cũng như thức ăn, và rác... nên nếu không bày trí khéo khi sử dụng sẽ phát sinh nhiều vấn đề gây ảnh hưởng đến mỹ quan chung tầng 1 cũng như sức khỏe của gia đình. Hệ modun tủ bếp + trạm bát + tủ lạnh + lò vi sóng + lò nướng bố trí hình chữ L full chiều ngang phòng bếp nấu. Để hỗ trợ tối đa cho bà nội chợ, các ngăn kéo đều được thiết kế hiện đại: chạm - mở - trượt rất nhẹ nhàng khi sử dụng. Ngoài ra còn có 1 tủ riêng thiết kế kệ đựng gia vị, mì tôm, đồ khô...kéo ra kéo vào rất thuận tiện như 1 gian hàng trong siêu thị. Nóc tủ lạnh có kệ đựng vài chai rượu khai vị thường dùng vừa tiện lại sang trọng. Bếp nấu biệt thự tân cổ điển nên cũng khá cầu lỳ và được đầu tư kỹ lưỡng, với 1 bàn đảo chất liệu gỗ gõ đục tay hoa văn hoàng gia, mặt bàn đá marble, và được đặt bình bông theo sở thích của nữ chủ nhân vô cùng duyên dáng.
Để đáp ứng nhu cầu nghỉ ngơi sinh hoạt của gia đình trẻ 4 người gồm bố mẹ và 2 con đang đi học, mẫu biệt thự phố 4 tầng thiết kế gồm 6 phòng ngủ. Từ tầng 2 đến tầng 4, mỗi tầng có 2 phòng ngủ. Diện tích một phòng ngủ theo 2 kích thước 32.8m2/phòng và 40m2/phòng. Tầng tum cho không gian thờ cúng, và sân thượng để giặt giũ phơi phóng.
Nhà Sang với các KTS đam mê thiết kế, luôn đặt mình vào vị trí khách hàng để tính toán, giảm thiểu tối đa chi phí phát sinh không cần thiết; có kinh nghiệm trong thiết kế biệt thự sang trọng, nhà ở cao cấp luôn nỗ lực sáng tạo hết mình mang lại không gian sống lý tưởng nhất đến bạn và gia đình.
Hãy liên hệ với chúng tôi để được tư vấn miễn phí:
Liên hệ thiết kế:
Email: tuvannhasang@gmail.com
Hotline: 0936 104 768
Nhà Sang - Thiết kế nhà đẹp
