

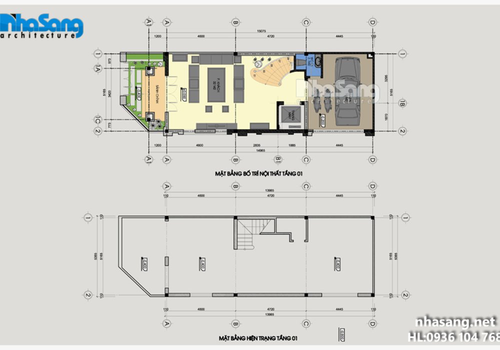
Ngoài yêu cầu thiết kế mặt tiền thể hiện vẻ đẹp quyền quý, sang trọng theo phong cách kến trúc Pháp, Chủ đầu tư mong muốn các không gian trong nhà phải rộng, sang và bố trí được thang máy, phòng khách rộng trên 30m, bếp và phòng ăn được đưa lên tầng 5 để bố trí phòng ăn kết hợp với vườn trên sân thượng (phương án cải tạo công năng được thể hiện ở dưới).
Mẫu nhà 5 tầng với kiến trúc kiểu Pháp, được xây dựng trên một lô đất đẹp có tới 2 mặt tiền. Kiến trúc với tỉ lệ mặt tiền đẹp, thiết kế không quá chú trọng về hệ thống hoa văn gờ phào phức tạp, mà chỉ nhấn mạnh ở các đầu cột và các phân tầng, phù hợp với mặt tiền hẹp. Trang trí ngoại thất thiên về sự tinh tế hơn là phô trương.







Mọi chi tiết hoa văn phào chỉ đều được trau truốt tỉ mỉ đúng theo bản thiết kế của KTS nhờ đó, biệt thự giữ nguyên được phom dáng và tôn lên vẻ sang trọng, bề thế, kiên cố riêng theo ý đồ của CĐT. Biệt thự thu hút mọi mắt ngắm và được lòng nhiều người cũng như nhiều khách thăm hỏi theo lời kể của gia chủ.
Về việc lựa chọn nguyên vật liệu, CĐT có thay đổi đôi chút theo sở thích và kinh tế gia chủ; do vậy cũng có một vài điểm khác biệt ở ngoại thất bên ngoài: biệt thự hài hòa hơn khi thiết kế trọn bộ cùng tone màu ở cả tầng 1 và ở thiết kế móng.
Biệt thự chinh phục bất cứ khách tham quan nào. Nhiều CĐT có đến thăm công trình thực tế biệt thự tân cổ điển Pháp này để đánh giá khả năng thiết kế của công ty đều bị thuyết phục bởi mức độ đồ sộ, sang trọng, thu hút trổi vượt so với các công trình biệt thự kề bên.
Nhận sự tin tưởng của CĐT, KTS nội thất Nhà Sang bàn tính kỹ càng ý đồ sáng tạo ngoại thất và phong thủy cũng như hướng từng phòng với KTS chủ trì ngoại thất để đưa ra mẫu thiết kế nội thất hoàn hảo thống nhất ăn tone giữa thiết kế nội thất và ngoại thất biệt thự.





Phòng bé trai được thiết kế 2 giường gỗ 2 góc với gỗ hương thơm nhẹ nhàng cho giấc ngủ sâu. Phòng được thiết kế tạo khoảng không rộng ở giữa cho bé nghịch đùa.

Phòng ngủ 2 bé được thiết kế bàn học rộng giữa khoảng 2 giường với cửa sổ lớn dài trọn bàn mang không gian tươi mới và ánh sáng vào làm thoáng cả không gian nội thất phòng ngủ và lấy ánh sáng tự nhiên cho góc học tập 2 bé.

Hồ sơ thiết kế bao gồm các phối cảnh 3d kiến trúc, mặt tiền, các mặt bên, chi tiết mặt bằng công năng, mặt bằng bố trí nội thất các tầng, mặt cắt, chi tiết kỹ thuật thi công, bản vẽ thiết kế kết cấu, thiết kế điện chiếu sáng, sinh hoạt, cấp thoát nước sinh hoạt... tiểu cảnh sân vườn, chi tiết cổng, tường rào...
Toàn bộ hồ sơ thiết kế công năng các phòng và kiến trúc đều được tư vấn hợp theo Phong thủy và tuổi của chủ đầu tư. Kích thước các phòng, chiều cao nhà và kích thước cửa đều theo kích thước phong thủy.
Liên hệ thiết kế thi công:
Email: house.vina@gmail.com
Hotline: 0936 104 768
KTS. Bùi Sĩ Thường - kiến trúc Nhà Sang