Căn Biệt thự đẹp này đã được xây dựng phần thô, kiến trúc Nhà Sang thiết kế cải tạo lại công năng, kiến trúc mặt tiền và trang trí nội thất cho Chủ đầu tư. Dựa trên hiện trạng đã xây dựng và nhu cầu thực tế sử dụng của gia chủ các kiến trúc sư đã nghiên cứu phân chia lại công năng để có các không gian đẹp, hợp lý, hợp Phong thủy và thiết kế kiến trúc ngoại thất mặt tiền đẹp theo phong cách hiện đại.

Kiến trúc mặt tiền hiện đại 3 mặt tiền đẹp, khỏe khoắn với kính và hình khối mạnh - mau nha dep. Biệt thự lấy gam trắng làm tone màu chính phối nhấn nhá với những mảng màu đá ghi sang trọng kiến tạo nên ngoại thất hoàn hảo biệt thự 5 tầng phong cách hiện đại.

Góc nhìn có mặt tiền phía sau - thiet ke nha dep

Mặt bằng công năng tầng 1 với gara có thể chứa được 2 xe ô tô, tầng 1 được xây dựng đúng diện tích đất thực tế.

Tầng 2 và các tầng trên được xây dựng đua ra so với tầng 1, diện tích xây dựng 6,22m x 12,5m

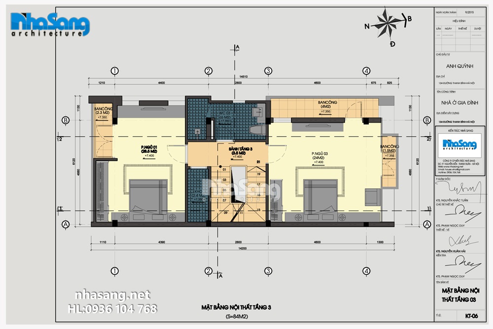
Tầng 3 gọn gàng ngăn nắp với 2 phòng ngủ đẹp - rộng vệ sinh chung rộng và tiện nghi.

Phòng khách có diện tích sử dụng 30m2 được thiết kế bộ salon đồng kỵ 9 món, trang trí nhẹ nhàng với điểm nhấn là các nét gỗ, khung tranh gỗ, tủ trang trí gỗ và phào gỗ

Nội thất phòng ngủ master hiện đại

Nội thất phòng ngủ hiện đại sang trọng bởi tông màu dịu nhẹ nhàng. Căn phòng ngủ đón nhận được nhiều ánh sáng tự nhiên

Nội thất phòng ăn và bếp hiện đại

Không gian bếp ăn tiện nghi ngăn nắp.

Hồ sơ thiết kế bao gồm các phối cảnh 3d kiến trúc, mặt tiền, các mặt bên, chi tiết mặt bằng công năng, mặt bằng bố trí nội thất các tầng, mặt cắt, chi tiết kỹ thuật thi công, bản vẽ thiết kế kết cấu, thiết kế điện chiếu sáng, sinh hoạt, cấp thoát nước sinh hoạt... tiểu cảnh sân vườn, chi tiết cổng, tường rào...
Toàn bộ hồ sơ thiết kế công năng các phòng và kiến trúc đều được tư vấn hợp theo Phong thủy và tuổi của chủ đầu tư. Kích thước các phòng, chiều cao nhà và kích thước cửa đều theo kích thước phong thủy.
Một bộ hồ sơ thiết kế nội thất tiêu chuẩn gồm phối cảnh 3D mặt bằng bố trí nội thất, mặt bằng lát sàn, phòng, mặt bằng trần(mặt bằng thạch cao), mặt bằng bố trí đèn, mặt cắt các diện phòng, bản vẽ chi tiết lát sàn, kiểu cách ốp lát, chủng loại, mã hiệu vật liệu, cách thức thi công; bản vẽ chi tiết trần đèn trang trí, vị trí lắp đặt các loại đèn, thiết bị; bản vẽ chi tiết các đồ đạc nội thất (bàn, ghế, giường, tủ, vật dụng trang trí,…); bản vẽ chi tiết cửa, hoa sắt bảo vệ, chi tiết vách kính rèm,…; thống kê số lượng, khối lượng chủng loại vật tư nội thất; Điện động lực, điện chiếu sáng, trang trí, điện thoại, internet, capTV, chống sét, báo cháy…(theo nhu cầu của chủ đầu tư) bao gồm mặt bằng bố trí thiết bị, đi dây, tính toán công suất thụ, sơ đồ nguyên lý cấp điện, khái toán tổng giá trị đầu tư xây dựng (nếu chủ đầu tư yêu cầu)….
Liên hệ thiết kế thi công:
Email: house.vina@gmail.com
Hotline: 0936 104 768